Vsimdim — це мобільний будинок, що має усі необхідні зручності

Більше про Vsimdim

Мобільний будинок заводського виробництва для тимчасовго проживання.

Поставляється у 100% готовності до проживання з технікою та меблями.

Виготовляється з сертифікованих та вогнетривких матеріалів та придатний для цілорічного проживання.

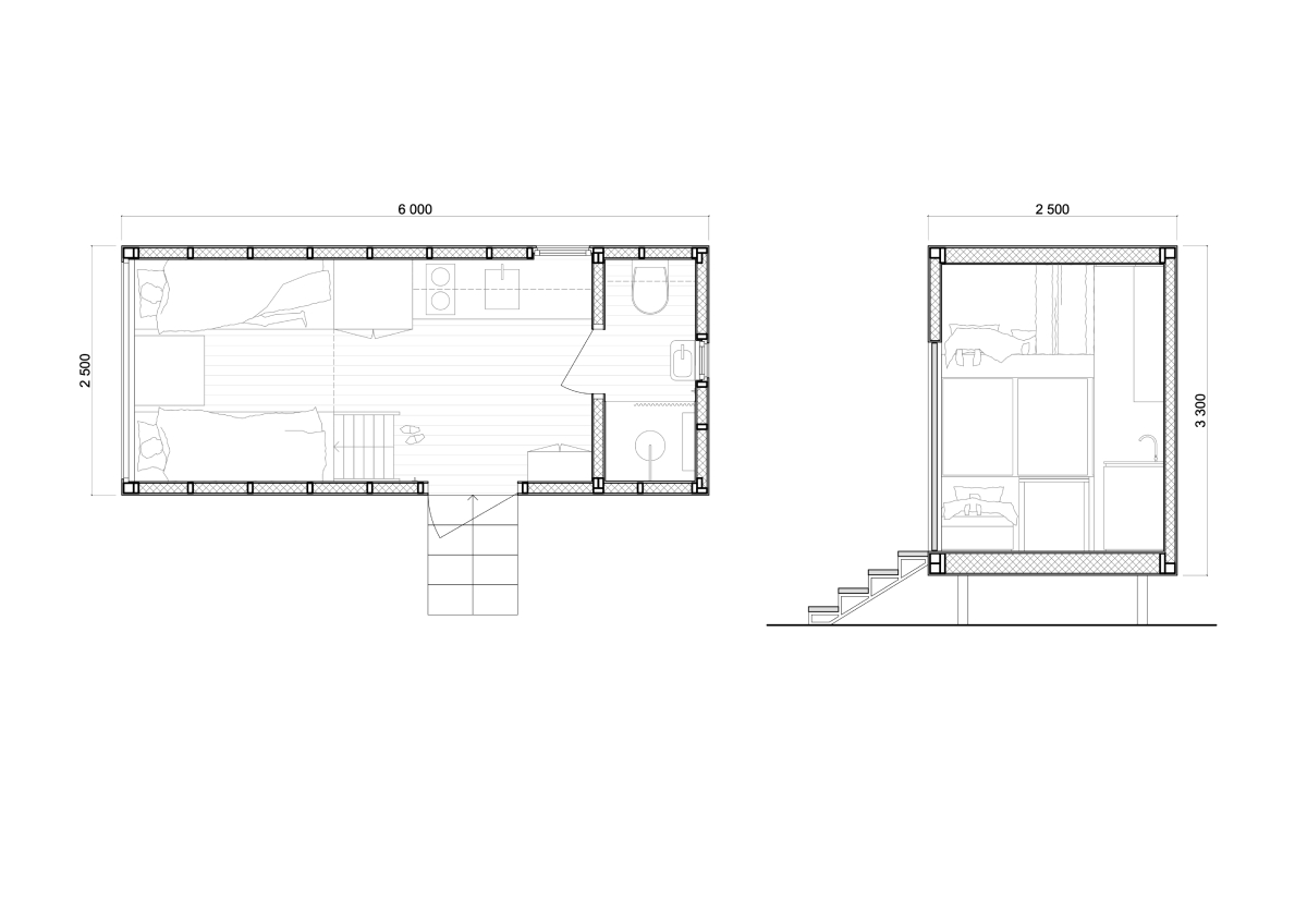
  1. Двоконтурний котел
  2. Туалет
  3. Рекуператор/Вентилятор
  4. Душ 80/90
  5. Місце для зберігання речей
  6. Холодильник
  7. Повноцінна кухонна зона
  8. Подвійне спальне місце
    або опційно 2 роздільних
  9. Стіл-трансформер
  10. Радіатор
  11. Місце для зберігання речей
  12. 2 роздільних спальних місця

Ергономіка

Всімдім — маленький будинок — 12,5 м². В ньому є все для комфортного тимчасового житла: своя спальня, своя кухня, своя ванна кімната, персональний простір, місця для зберігання речей.

Конструктив та матеріали

  1. Конструктивна сендвіч-панель
  2. Конструктивна сендвіч-панель
  3. Ємності для зберігання води (Опція)
  4. Шасі (Опція)
  5. Конструктивна сендвіч-панель
  6. Тонована фанера меблевої якості
  7. Конструктивна сендвіч-панель
  8. Дерев’яне покриття підлоги
  9. XPS-утеплювач
  10. Конструктивна сендвіч-панель
  11. Сталева рама-панель
  12. Гравійна засипка

Енергоефективність

Будинки Всімдім з автономним опаленням розроблені для цілорічного комфортного проживання.

Через те, що будинок добре утеплений, йому необхідне мінімальне джерело тепла.

Економність

Навіщо економити воду?

Не до кожної ділянки є можливість провести воду та влаштувати водовідведення. Інколи проводити ці комунікації не виправдано дорого, якщо поселення планується лише на 5 родин.

Будівництво локальних очисних споруд — одна з найбільших витрат у поселеннях. Щобільше води використовується родиною → тим більшою є необхідна потужність очисних споруд → тим дорожче облаштування комунікацій.

Як ми будемо економити воду?

Дім на колесах

Будь-який будинок Всімдім можна дообладнати і перетворити на автономний дім на колесах.

Ми мріємо, що після війни українці та весь світ буде з комфортом мандрувати Україною, милуватися красою та розмаїттям нашої природи, знайомитися з українською культурою та один з одним.

Жителі Vsimdim відпочивають біля багаття Позашляховики везуть будинки Vsimdim на мальовничий схил

Вартість будинку

Вартість встановленого будинку складає 19 000 $.

Щоб зробити будинок мобільним та повністю автономним, можна додатково встановити шасі та автономні комунікації коштом від 3 500 $ до 10 000 $, в залежності від наповнення.

Сьогодні проєкт Vsimdim концентрує потужності виробництва на тому, щоб забезпечити тимчасовим житлом за собівартістю тих людей, які найбільше цього потребують. Якщо ви хочете придбати будинок для себе або близьких, напишіть на сторінку материнського стартапу Світанок.